





Under Construction. An architectural statement of modern luxury, this exceptional new construction is perfectly positioned on Davis Islands, Tampa Bay's most coveted address. Offering 7,124 sq ft of refined living, this residence blends bold contemporary design with effortless functionality, creating a home that is as striking as it is livable.
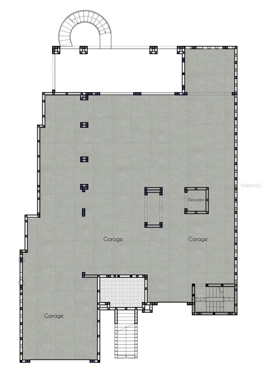
The home features a rare full lower-level garage accommodating 8-12 vehicles, complete with private elevator access servicing all levels. A grand floating staircase, wide-plank white oak flooring, and natural stone finishes set the tone for a truly elevated living experience.
Designed for both everyday living and unforgettable entertaining, the heart of the home features a chef's double-island kitchen with Sub-Zero refrigeration, Wolf appliances, natural gas range, and an oversized pantry with additional refrigeration. The open-concept layout flows seamlessly into the family room and formal dining space, all centered around a stunning ethanol fireplace, creating a warm, sophisticated ambiance throughout.
Indoor-outdoor living leads to a resort-style backyard with pool, spa, and gas-heated features designed for year round enjoyment.
With 6 bedrooms and 8 bathrooms, the home offers a luxurious primary suite retreat with a spa-inspired bath, oversized shower, and dual vanities. A spacious upper-level laundry room with two washers and two dryers adds a layer of everyday ease without compromising design.
Crowning the home is a rooftop terrace with sweeping, far-reaching views--an elevated escape perfect for sunset gatherings or quiet moments above it all. Additional highlights include a gas-powered outdoor kitchen and thoughtfully designed flexible living spaces.
A rare opportunity to own a new modern residence in Davis Islands, where location, design, and lifestyle converge.
Get assistance in determining current property value, crafting a competitive offer, writing and negotiating a contract, and much more. Let Kimberly guide you through your home-buying journey.
Let's Connect